桂花城
來源:九鼎裝飾 瀏覽人數:331次 更新時間:2018-05-31 15:28:00
| 案例風格 | 新中式 | 案例戶型 | 四居室 | 案例面積 | 180㎡ |
| 樓盤名稱 | 桂花城 | 所在城市 | 浙江杭州 | 案例造價 | |
| 服務店面 | 杭州九鼎裝飾 | 設計師 | 王雁 | 業主評價 | ★★★★★ |
設計說明:本案女主人喜歡比較簡單的東西,開始想做美式,設計師在跟業主溝通多次后發現美式的線條、弧度、軟
裝搭配都不是女主人所喜歡的,只有美式家具的色調以及厚重感是她比較中意的。最后在設計師的建議下改為了新中風格
。本案材質以原木為主,搭配藍灰色調的壁紙。在家中,一抹素雅的藍,點一盞燈,看一本書,享受愜意生活。

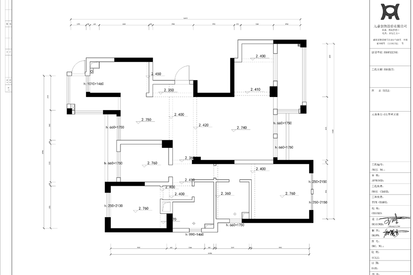
桂花城原始結構圖

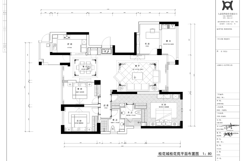
桂花城平面布置圖

餐廳


客廳

餐廳和玄關

客廳電視機

書房

主臥

裝飾

廚房和玄關
上一篇:
下一篇:都市水鄉







