辦公室裝修效果圖設計說明:中式風格的特點是經典而優雅,中式風格并不缺乏中國風格的裝飾,在中色,朱紅、腮紅、棕色等大量應用。也就是說,莊嚴的顏色占主導地位。設計得安靜而優雅,這樣的中國裝飾會覺得很好看,因為每次看不同角度,感覺都不同,不同的人看到效果也不一樣。

辦公裝修效果圖
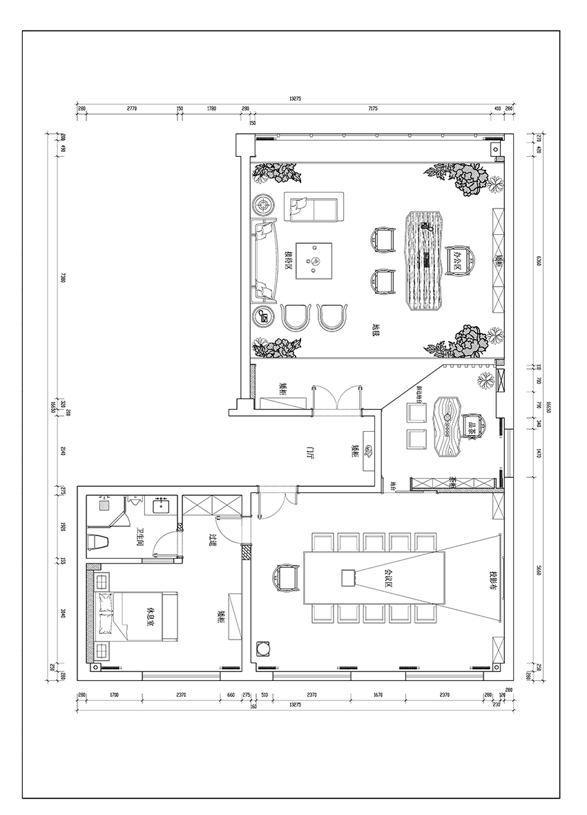
裝修平面圖

洽談區裝修效果圖

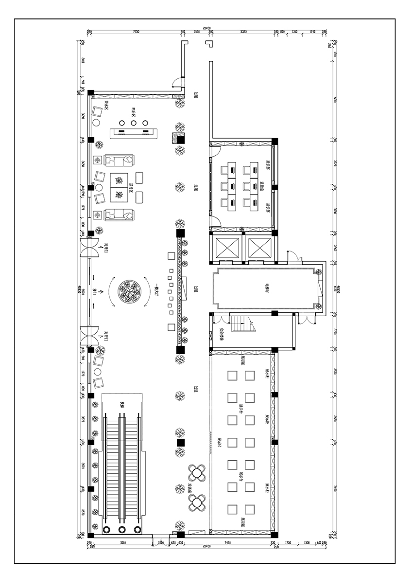
宴會廳平面圖

餐廳裝修效果圖

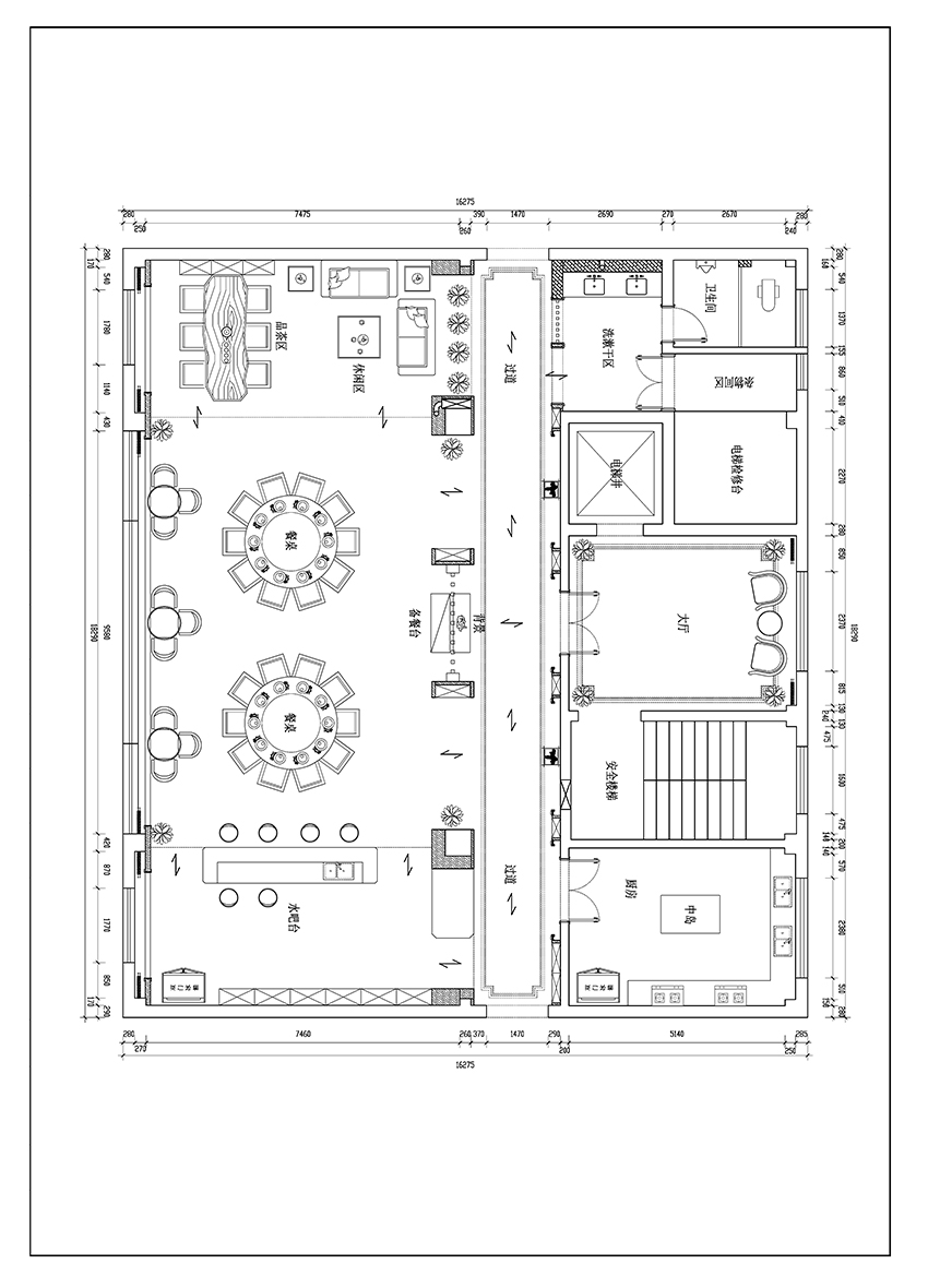
一樓平面圖

品茶區裝修效果圖
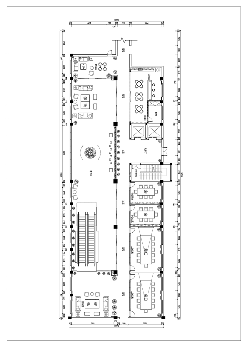
二樓平面圖

宴會廳休閑區裝修效果圖

宴會廳玄關裝修效果圖

戶型:其它
風格:新中式
面積:500㎡以上
城市:杭州
辦公室裝修效果圖設計說明:中式風格的特點是經典而優雅,中式風格并不缺乏中國風格的裝飾,在中色,朱紅、腮紅、棕色等大量應用。也就是說,莊嚴的顏色占主導地位。設計得安靜而優雅,這樣的中國裝飾會覺得很好看,因為每次看不同角度,感覺都不同,不同的人看到效果也不一樣。

辦公裝修效果圖
裝修平面圖

洽談區裝修效果圖

宴會廳平面圖

餐廳裝修效果圖

一樓平面圖

品茶區裝修效果圖
二樓平面圖

宴會廳休閑區裝修效果圖

宴會廳玄關裝修效果圖