柏悅府裝修效果圖設計說明:設計師通過與業主的深入溝通,了解到他性格好爽大氣,知識淵博,喜歡在家接待客人,再結合該戶型依山傍水,視野開闊,內部空間比較高敞的結構特點,決定以奢華大氣的歐式風格為該別墅的設計基調.

柏悅府主臥裝修效果圖

柏悅府餐廳裝修效果圖

柏悅府地下室裝修效果圖

柏悅府地下室影視廳裝修效果圖

柏悅府中廳裝修效果圖

柏悅府客廳裝修效果圖

柏悅府門廳裝修效果圖

柏悅府二層平面布置圖

柏悅府三層平面布置圖

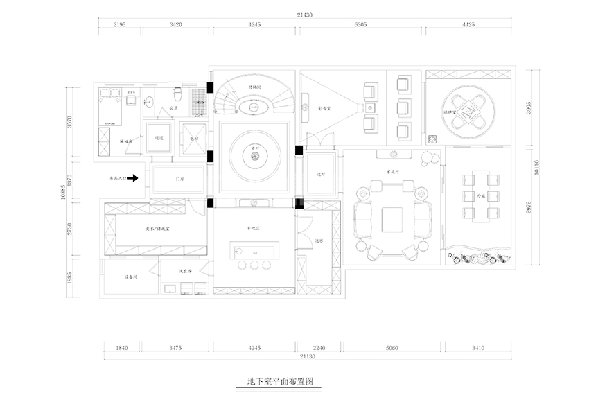
柏悅府地下室平面布置圖

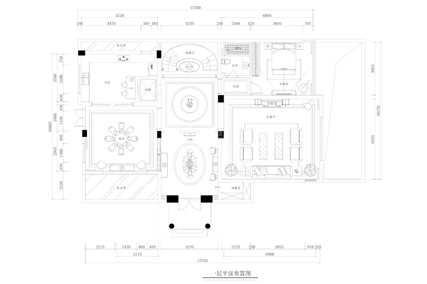
柏悅府一層平面布置圖

戶型:別墅
風格:歐式
面積:500㎡以上
城市:南京
柏悅府裝修效果圖設計說明:設計師通過與業主的深入溝通,了解到他性格好爽大氣,知識淵博,喜歡在家接待客人,再結合該戶型依山傍水,視野開闊,內部空間比較高敞的結構特點,決定以奢華大氣的歐式風格為該別墅的設計基調.

柏悅府主臥裝修效果圖

柏悅府餐廳裝修效果圖

柏悅府地下室裝修效果圖

柏悅府地下室影視廳裝修效果圖

柏悅府中廳裝修效果圖

柏悅府客廳裝修效果圖

柏悅府門廳裝修效果圖

柏悅府二層平面布置圖

柏悅府三層平面布置圖

柏悅府地下室平面布置圖

柏悅府一層平面布置圖