
水湘苑位于景芳曇花庵路上。新塘路以東。分高層和多層兩個批次 。建筑完工在2005年左右。大部分是當地回遷房。小區的房子有高層和多層的房子組成的 環境很好的。2005年的次新房,是景芳區塊最新的房子。小區環境綠化一流,衛生干凈,本地人居多,交通便利。物業管理不是物業,相對一般服務一般,物業管理制度也一般。
地址:江干三新路與曇花庵路交叉口

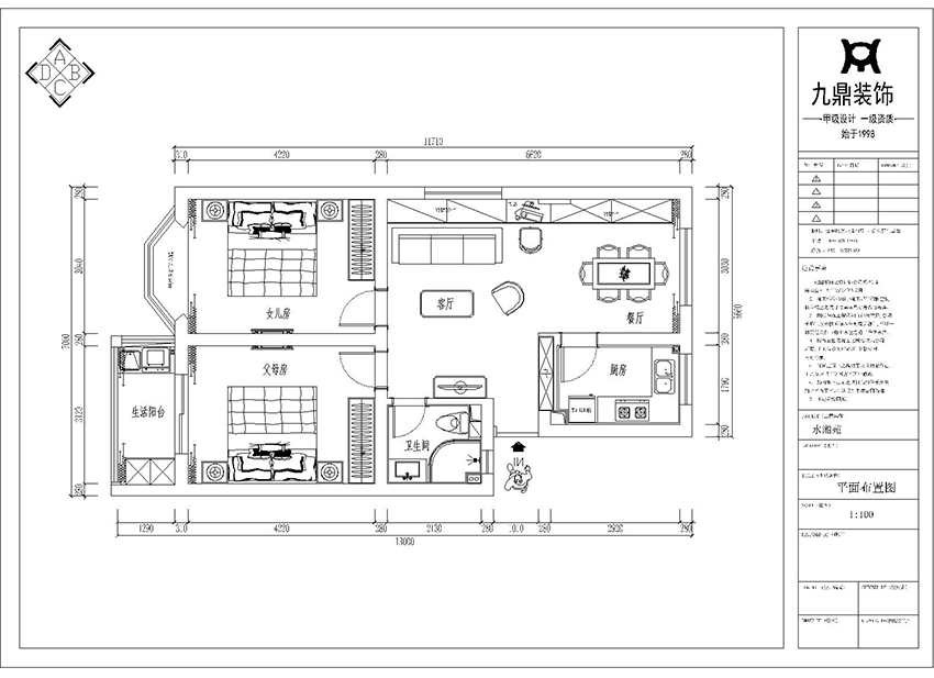
戶型圖
設計說明:本案強調室內空間寬敞、內外通透,最大限度引入自然光,以白色、木紋色為主調,再取亮色為點綴,將自然、隨性的氣息散發出來,雖然沒有華麗的裝飾,但家的溫馨與舒適感卻無處不在。

玄關
進門鞋柜、餐廳及客廳沙發背后儲物柜彌補了儲物空間的空缺,除了將雜物隱藏將爸爸的攝影作品得到展示外,還通過規劃設計出工作區,偶爾還可以在這里喝個小茶,上上網,追追劇,總之這樣的日子很好、很溫馨。

客廳
整個空間設計比較方正,以木紋色系延展。客餐廳地面在原套餐基礎上升級為既耐磨又接近房間實木地板的木紋磚,墻面白色乳膠漆讓整個空間顯得更加明亮,不加任何修飾的吊頂既滿足了2.6層高需求 , 又點明了設計主題?;疑嘲l搭配跳色靠枕,給人清新、自然的舒適感。

餐廳

主臥
父母房實木地板、白色墻面、曲美家具、清爽的床品搭配使空間色調趨于靜謐床頭綠白相間掛畫讓小小的居室空間既層次豐富又和諧統一。陽光的午后,那些看似漫不經心的裝飾搭配,卻處處流露著精致細膩的幸福感。

次臥
女兒房的實木地板、白色墻面、灰色配飾、曲美家具、黃色床品等搭配與客廳的色彩保持一致,讓人倍感舒適愜意。清晨,一米陽光悄悄溜進臥室喚醒睡眼朦朧的女兒,飄窗上陽光的問候給你一個新的心情。

廚房
廚房除電器外,其他均選用套餐產品。帥康櫥柜門板花色與整體家具顏色很是合搭,臺面干凈清爽,冰箱上方吊柜既可儲物,又使整排吊柜連貫。

衛生間
衛生間采用干濕分離所能見的除了宜家的置物架,其他均是套餐可選產品,淺色系仿石材紋理的瓷磚拉伸了整個衛生間的空間感。

陽臺
陽臺一側的儲物柜可用于存放異形物品,讓家干凈整潔。另一側的洗衣機使得洗曬方便,讓衣服滿滿都是陽光的味道。